貸店舗(区分)
✨築浅デザイナーズで魅せる、ハイグレード空間✨(TOMIKE TAKASAGO201)
賃
28万9,680円 (+管理費 5,500円)
敷
105万3,384円
礼
28万9,680円
保
-
03-3525-4070
お電話の際は「ホームページを見て」とお伝えください
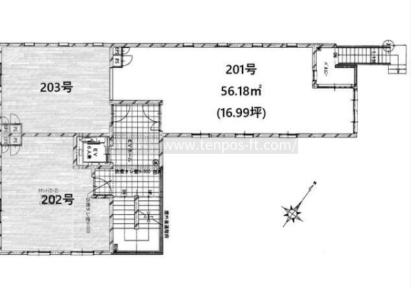
福岡市中央区高砂2丁目「TOMIKE TAKASAGO」201号室のご紹介です🏢✨ 2024年築の築浅RC造デザイナーズ物件で、洗練された外観と雰囲気が来店時の印象をぐっと高めてくれます🌟 専有面積は56.18㎡(約16.99坪)と使いやすい広さで、カフェやバー、スナック、美容系など“雰囲気重視”の業態にぴったり🍷☕💆♀️ スケルトン仕様のため、内装は自由に設計可能。天井高2.5m以上の開放感ある空間で、コンセプトをしっかり表現できます🎨✨ 2階角部屋で独立性もあり、落ち着いた営業にも最適👍 賃料は月額289,680円(税込)+管理費5,500円(税込)。敷金約105万円・礼金約29万円と初期費用はかかりますが、その分“見せる店舗”としてしっかり差別化できる一室です💰 エレベーター・ビルトインエアコン・防犯カメラ完備で設備面も充実🔐 「空間で勝負したい」「ブランド力を上げたい」そんな方におすすめのハイポテンシャル物件です🚀✨
福岡市中央区高砂2丁目「TOMIKE TAKASAGO」201号室のご紹介です🏢✨ 2024年築の築浅RC造デザイナーズ物件で、洗練された外観と雰囲気が来店時の印象をぐっと高めてくれます🌟 専有面積は56.18㎡(約16.99坪)と使いやすい広さで、カフェやバー、スナック、美容系など“雰囲気重視”の業態にぴったり🍷☕💆♀️ スケルトン仕様のため、内装は自由に設計可能。天井高2.5m以上の開放感ある空間で、コンセプトをしっかり表現できます🎨✨ 2階角部屋で独立性もあり、落ち着いた営業にも最適👍 賃料は月額289,680円(税込)+管理費5,500円(税込)。敷金約105万円・礼金約29万円と初期費用はかかりますが、その分“見せる店舗”としてしっかり差別化できる一室です💰 エレベーター・ビルトインエアコン・防犯カメラ完備で設備面も充実🔐 「空間で勝負したい」「ブランド力を上げたい」そんな方におすすめのハイポテンシャル物件です🚀✨
基本情報
賃料・費用
28万9,680円 (+管理費 5,500円)
敷
105万3,384円
礼
28万9,680円
保
-
間取り・専有
56.18㎡
住所
交通
高宮駅(徒歩18分)
薬院駅(徒歩14分)
渡辺通駅(徒歩13分)
西鉄平尾駅(徒歩9分)
築年月
築1年(2024年10月)
駐車場
出店おすすめ業種
美容・健康・介護
バー・クラブ・スナック
喫茶・カフェ(軽飲食)
設備・特徴
建物設備・特徴
エレベーター
冷暖房
エアコン付
ビルトインエアコン
特徴
スケルトン
室内設備・特徴
デザイナーズ
物件概要
階数
2階/地上3階建
専有面積
16.99坪 (56.18㎡)
所在地
福岡県福岡市中央区高砂2丁目 14-3
構造
鉄筋コンクリート(RC)造
契約期間
普通借家
引渡し時期
相談
出店可能業種
美容・健康・介護、バー・クラブ・スナック、喫茶・カフェ(軽飲食)
取引態様
媒介(客付)
プロパンガス 防犯カメラ エレベーター
飲食店可 角部屋 スケルトン 天井高2.5m以上
その他一時金 鍵交換費用:19,800円、 テナント名入れ代:44,000円
飲食店可 角部屋 スケルトン 天井高2.5m以上
その他一時金 鍵交換費用:19,800円、 テナント名入れ代:44,000円
費用詳細
賃料
28万9,680円
敷金
105万3,384円
礼金
28万9,680円
仲介手数料
28万9,680円
管理費/共益費
5,500円
交通
周辺環境