東京メトロ丸ノ内線「茗荷谷駅」から**徒歩1分**という、好立地に「マガザン茗荷谷」101号室、102号室、201号室、202号室が募集開始です!2025年11月竣工の**新築**物件で、路面店のため視認性も高く、お客様を惹きつける集客力も期待できます。
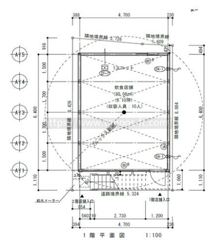
約30.08㎡の広々とした空間は、スケルトン渡しですので、あなたの理想とする店舗デザインを自由に実現していただけるのが魅力です。飲食全般、特に重飲食にも対応可能ですので、こだわりのレストランやカフェ、居酒屋など、幅広い業種でご検討いただけます。
駅都心へのアクセスが良いながらも落ち着いた雰囲気の住宅街が広がる落ち着いた文教地区です。2階は屋上も使用可能です。
東京メトロ丸ノ内線「茗荷谷駅」から**徒歩1分**という、好立地に「マガザン茗荷谷」101号室、102号室、201号室、202号室が募集開始です!2025年11月竣工の**新築**物件で、路面店のため視認性も高く、お客様を惹きつける集客力も期待できます。
約30.08㎡の広々とした空間は、スケルトン渡しですので、あなたの理想とする店舗デザインを自由に実現していただけるのが魅力です。飲食全般、特に重飲食にも対応可能ですので、こだわりのレストランやカフェ、居酒屋など、幅広い業種でご検討いただけます。
駅都心へのアクセスが良いながらも落ち着いた雰囲気の住宅街が広がる落ち着いた文教地区です。2階は屋上も使用可能です。
約30.08㎡の広々とした空間は、スケルトン渡しですので、あなたの理想とする店舗デザインを自由に実現していただけるのが魅力です。飲食全般、特に重飲食にも対応可能ですので、こだわりのレストランやカフェ、居酒屋など、幅広い業種でご検討いただけます。
駅都心へのアクセスが良いながらも落ち着いた雰囲気の住宅街が広がる落ち着いた文教地区です。2階は屋上も使用可能です。
基本情報
賃料・費用
33万円
敷
無料
礼
33万円
保
180万円
間取り・専有
30.08㎡
住所
交通
茗荷谷駅(徒歩1分)
築年月
築0年(2025年11月)
駐車場
無し
出店おすすめ業種
飲食全般(重飲食含む)
設備・特徴
特徴
路面店
スケルトン
室内設備・特徴
デザイナーズ
物件概要
階数
1階/地上2階建
専有面積
9.10坪 (30.08㎡)
所在地
東京都文京区小日向4丁目7-11
構造
鉄骨造
契約期間
普通借家
引渡し時期
相談
出店可能業種
飲食全般(重飲食含む)
管理人
無
取引態様
媒介(客付)
スケルトンでのお引渡しとなります。ご退去時もスケルトンでのご返却となります。看板については集合看板の利用となります。
電灯(75A)
動力(50A)
排水管立ち上がり(100A)
給水管室内バルブ止めまで
ガスあり(10号メーター程度)
※指定(日本セーフティー)の保証会社要加入※火災保険要加入※契約時は領収書発行不可
電灯(75A)
動力(50A)
排水管立ち上がり(100A)
給水管室内バルブ止めまで
ガスあり(10号メーター程度)
※指定(日本セーフティー)の保証会社要加入※火災保険要加入※契約時は領収書発行不可
費用詳細
賃料
33万円
敷金
無料
保証金
180万円
礼金
33万円
仲介手数料
33万円
更新料
33万円
駐車場
無し
周辺環境