物件No.TO2510-803 小笠原 貸店舗(区分)
西大路新築路面1階テナント
賃
81万700円 (+管理費 1万1,000円)
敷
442万2,000円
礼
73万7,000円
保
-
03-3525-4070
お電話の際は「ホームページを見て」とお伝えください
【西大路エリアに誕生する、新築路面1階テナントのご紹介です!】
2024年10月竣工予定の真新しい建物で、新たなビジネスチャンスを掴みませんか?
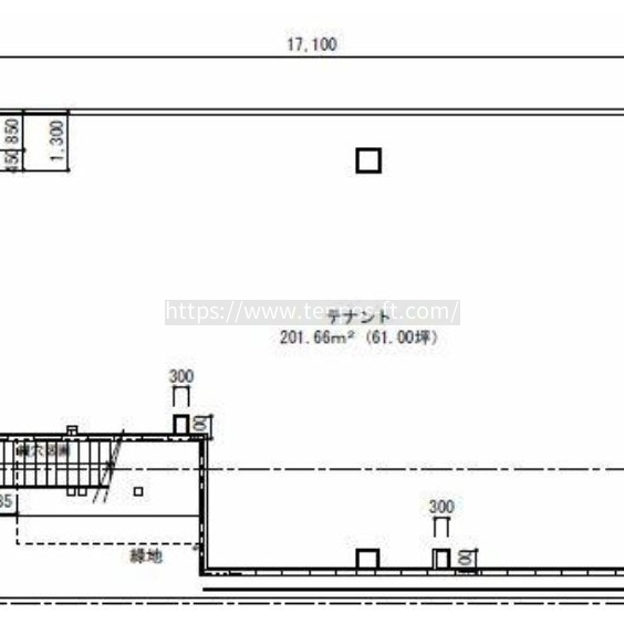
約201.66m²の広々としたスケルトン物件は、お客様の理想とする店舗空間を自由に創り出すことができる設計です。飲食全般(重飲食含む)、小売・物販、美容・健康・介護など、幅広い業種に対応可能です。
JR京都線「西大路」駅まで徒歩14分。周辺にはコンビニやスーパー、ドラッグストア、多彩な飲食店が揃い、日々の買い物客や近隣住民の往来も多く、集客力も期待できます。
この特別な舞台で、あなたの理想の店舗を形にしてみませんか?詳細については、まずはお気軽にお問い合わせください!
【西大路エリアに誕生する、新築路面1階テナントのご紹介です!】
2024年10月竣工予定の真新しい建物で、新たなビジネスチャンスを掴みませんか?
約201.66m²の広々としたスケルトン物件は、お客様の理想とする店舗空間を自由に創り出すことができる設計です。飲食全般(重飲食含む)、小売・物販、美容・健康・介護など、幅広い業種に対応可能です。
JR京都線「西大路」駅まで徒歩14分。周辺にはコンビニやスーパー、ドラッグストア、多彩な飲食店が揃い、日々の買い物客や近隣住民の往来も多く、集客力も期待できます。
この特別な舞台で、あなたの理想の店舗を形にしてみませんか?詳細については、まずはお気軽にお問い合わせください!
2024年10月竣工予定の真新しい建物で、新たなビジネスチャンスを掴みませんか?
約201.66m²の広々としたスケルトン物件は、お客様の理想とする店舗空間を自由に創り出すことができる設計です。飲食全般(重飲食含む)、小売・物販、美容・健康・介護など、幅広い業種に対応可能です。
JR京都線「西大路」駅まで徒歩14分。周辺にはコンビニやスーパー、ドラッグストア、多彩な飲食店が揃い、日々の買い物客や近隣住民の往来も多く、集客力も期待できます。
この特別な舞台で、あなたの理想の店舗を形にしてみませんか?詳細については、まずはお気軽にお問い合わせください!
基本情報
賃料・費用
81万700円 (+管理費 1万1,000円)
敷
442万2,000円
礼
73万7,000円
保
-
間取り・専有
201.66㎡
住所
交通
西大路駅(徒歩14分)
築年月
築1年(2025年1月)
駐車場
出店おすすめ業種
飲食全般(重飲食含む)
小売・物販
美容・健康・介護
設備・特徴
特徴
スケルトン
路面店
物件概要
階数
1階/地上5階建
専有面積
61.00坪 (201.66㎡)
所在地
京都府京都市南区吉祥院向田東町
構造
鉄骨造
契約期間
定期借家
入居歴
なし
出店可能業種
飲食全般(重飲食含む)、小売・物販、美容・健康・介護
取引態様
媒介(客付)
物件No.
TO2510-803 小笠原
新築路面1階テナント!
西大路エリア!
※まずはご相談ください。
償却:解約時50% その他償却条件:返還率:2年未満0%、2年以上6年未満50%、6年以上10年未満80%、10年以上期間満了100%
更新料:新賃料1ヵ月
西大路エリア!
※まずはご相談ください。
償却:解約時50% その他償却条件:返還率:2年未満0%、2年以上6年未満50%、6年以上10年未満80%、10年以上期間満了100%
更新料:新賃料1ヵ月
費用詳細
賃料
81万700円
敷金
442万2,000円
礼金
73万7,000円
仲介手数料
81万700円
管理費/共益費
1万1,000円
周辺環境
銀行 京都中央信用金庫葛野支店
約313m
4分
飲食店 餃子の王将吉祥院八条通店
約254m
4分
飲食店 すき家吉祥院八条通店
約230m
3分
スーパー 万代吉祥院店
約304m
4分
ホームセンター アヤハディオ吉祥院八条店
約239m
3分
ドラッグストア ダックス京都吉祥院前河原店
約190m
3分
幼稚園・保育園・こども園 祥豊保育園
約318m
4分
コンビニ セブンイレブン京都吉祥院向田東町店
約95m
2分