貸店舗(区分) 居抜き

要町2丁目

385,000

210
35
-
03-3525-4070

お電話の際は「ホームページを見て」とお伝えください

基本情報

賃料・費用

385,000

210万円
35万円
-
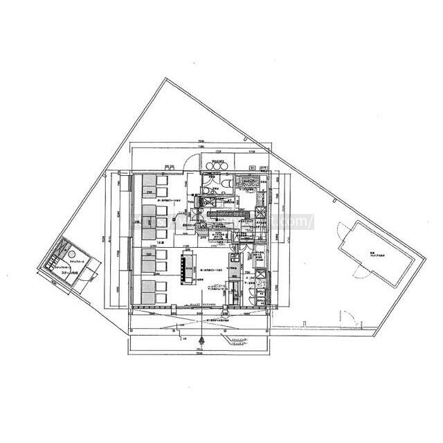
間取り・専有
49.51㎡
住所
交通
椎名町駅(徒歩16分)
要町駅(徒歩9分)
千川駅(徒歩7分)
築年月
築39年(1986年7月)
駐車場

出店おすすめ業種

居抜き情報

居酒屋 うどん屋 蕎麦屋

設備・特徴

立地
駅前立地

物件概要

階数
1階/地上1階建
専有面積
14.98坪 (49.51㎡)
土地面積
46.69坪 (154.35㎡)
所在地
東京都豊島区要町2-21-3
構造
鉄骨造
契約期間
普通借家
引渡し時期
相談
出店可能業種
飲食全般(重飲食含む)、喫茶・カフェ(軽飲食)
居抜き情報
居酒屋の居抜き、うどん屋の居抜き、蕎麦屋の居抜き
取引態様
媒介(客付)
賃貸保証;加入要 ナップ賃貸保証株式会社
前テナント業種:うどん・そば/ 業種補足説明:そば・居酒屋/ 造作譲渡無償

関連ファイル

費用詳細

賃料
38万5,000円
敷金
210万円
礼金
35万円
仲介手数料
38万5,000円
電話でお問合せ