貸店舗(区分)

中央区銀座

55

550
50
-
03-3525-4070

お電話の際は「ホームページを見て」とお伝えください

基本情報

賃料・費用

55

550万円
50万円
-
間取り・専有
46.28㎡
住所
交通
銀座駅(徒歩5分)
日比谷駅(徒歩7分)
新橋駅(徒歩9分)
駐車場

出店おすすめ業種

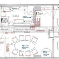
物件概要

階数
3階
専有面積
14.00坪 (46.28㎡)
所在地
東京都中央区銀座6-2-6
契約期間
普通借家
出店可能業種
飲食全般(重飲食含む)、喫茶・カフェ(軽飲食)、バー・クラブ・スナック
取引態様
媒介(客付)

費用詳細

賃料
55万円
敷金
550万円
礼金
50万円
仲介手数料
55万円
更新料
100万円
電話でお問合せ