貸店舗(区分)

銀座ウエストビル 地上3階

55

550
50
-
03-3525-4070

お電話の際は「ホームページを見て」とお伝えください

前テナント業種:和食・寿司/ 造作譲渡無償
前テナント業種:和食・寿司/ 造作譲渡無償

基本情報

賃料・費用

55

550万円
50万円
-
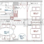
間取り・専有
46.28㎡
住所
交通
銀座駅(徒歩5分)
日比谷駅(徒歩7分)
新橋駅(徒歩9分)
駐車場

出店おすすめ業種

物件概要

階数
3階/地上8階建(地下2階)
専有面積
14.00坪 (46.28㎡)
所在地
東京都中央区銀座6-2-6
構造
鉄筋コンクリート(RC)造
契約期間
定期借家
引渡し時期
相談
出店可能業種
飲食全般(重飲食含む)、美容・健康・介護、バー・クラブ・スナック
取引態様
媒介(客付)

費用詳細

賃料
55万円
敷金
550万円
礼金
50万円
仲介手数料
55万円
更新料
100万円
電話でお問合せ