貸店舗(区分)
居抜き
パレスピジョン 1階(居酒屋居抜き譲渡相談物件!)
賃
23万4,300円 (+管理費 4万700円)
敷
127万8,000円
礼
21万3,000円
保
-
03-3525-4070
お電話の際は「ホームページを見て」とお伝えください
☆居ぬき居ぬき譲渡相談
☆業種相談(居酒屋盛業中)
☆店舗前駐車場2台付
☆雑費(警備システム)13,200円/月
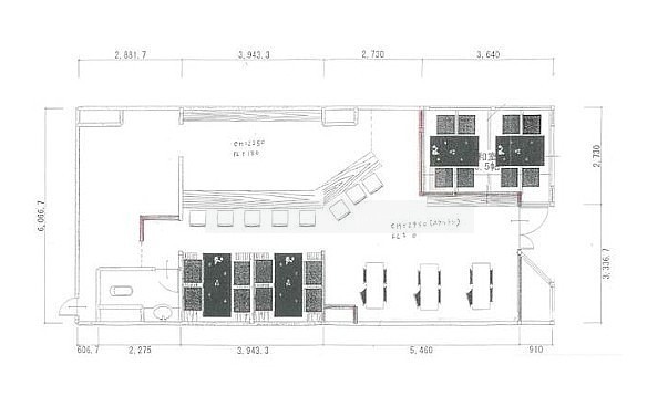
☆図面は現況と異なる部分があります。現況優先でお願いします。
☆居ぬき居ぬき譲渡相談
☆業種相談(居酒屋盛業中)
☆店舗前駐車場2台付
☆雑費(警備システム)13,200円/月
☆図面は現況と異なる部分があります。現況優先でお願いします。
☆業種相談(居酒屋盛業中)
☆店舗前駐車場2台付
☆雑費(警備システム)13,200円/月
☆図面は現況と異なる部分があります。現況優先でお願いします。
基本情報
賃料・費用
23万4,300円 (+管理費 4万700円)
敷
127万8,000円
礼
21万3,000円
保
-
間取り・専有
83.75㎡
住所
交通
旭ヶ丘駅(徒歩4分)
台原駅(徒歩19分)
築年月
築35年(1991年1月)
駐車場
有り
空き2台
出店おすすめ業種
飲食全般(重飲食含む)
喫茶・カフェ(軽飲食)
居抜き情報
居酒屋
設備・特徴
冷暖房
エアコン付
立地
駅前立地
建物設備・特徴
エレベーター
特徴
路面店
駐車場
無料駐車場あり
物件概要
階数
1階/地上8階建(地下1階)
専有面積
25.33坪 (83.75㎡)
所在地
宮城県仙台市青葉区旭ケ丘3丁目 17-18
構造
鉄骨鉄筋コンクリート(SRC)造
契約期間
普通借家
引渡し時期
相談
(入居中)
出店可能業種
飲食全般(重飲食含む)、喫茶・カフェ(軽飲食)
居抜き情報
居酒屋の居抜き
取引態様
媒介(客付)
※保証会社要、保険加入要(詳細要確認)
費用詳細
賃料
23万4,300円
敷金
127万8,000円
礼金
21万3,000円
管理費/共益費
4万700円
駐車場
有り
駐車可能台数: 2台
周辺環境
コンビニ セブンイレブン仙台旭ケ丘2丁目店
約503m
7分
スーパー フレッシュフードモリヤ旭ヶ丘店
約252m
4分
銀行 七十七銀行旭ケ丘支店
約163m
3分
郵便局 仙台旭ケ丘郵便局
約249m
4分