物件No.TR2507-3316河西 貸店舗(区分)
居抜き
仮 大谷緑園建設テナント
賃
55万6,000円 (+管理費 3万3,000円)
敷
303万2,728円
礼
50万5,455円
保
-
03-3525-4070
お電話の際は「ホームページを見て」とお伝えください
基本情報
賃料・費用
55万6,000円 (+管理費 3万3,000円)
敷
303万2,728円
礼
50万5,455円
保
-
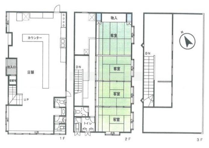
間取り・専有
129.23㎡
住所
交通
北八王子駅(徒歩2分)
豊田駅(徒歩32分)
駐車場
出店おすすめ業種
飲食全般(重飲食含む)
喫茶・カフェ(軽飲食)
バー・クラブ・スナック
居抜き情報
レストラン
物件概要
階数
2階/地上3階建
専有面積
39.09坪 (129.23㎡)
所在地
東京都八王子市石川町2953-3
契約期間
普通借家
引渡し時期
相談
出店可能業種
飲食全般(重飲食含む)、喫茶・カフェ(軽飲食)、バー・クラブ・スナック
居抜き情報
レストランの居抜き
取引態様
媒介(客付)
物件No.
TR2507-3316河西
費用詳細
賃料
55万6,000円
敷金
303万2,728円
礼金
50万5,455円
仲介手数料
2万2,000円
管理費/共益費
3万3,000円