物件No.TO2507-806 小笠原 貸店舗(区分)
元日町物件
賃
43万円
敷
234万5,455円
礼
39万910円
保
-
03-3525-4070
お電話の際は「ホームページを見て」とお伝えください
重飲食OK新築物件1階テナント
西本願寺近く、観光客多数エリア
国道1号線沿い、視認性良
重飲食OK新築物件1階テナント
西本願寺近く、観光客多数エリア
国道1号線沿い、視認性良
西本願寺近く、観光客多数エリア
国道1号線沿い、視認性良
基本情報
出店おすすめ業種
飲食全般(重飲食含む)
喫茶・カフェ(軽飲食)
バー・クラブ・スナック
物件概要
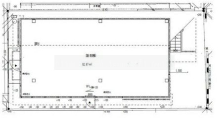
階数
1階/地上3階建
専有面積
25.07坪 (82.87㎡)
所在地
京都府京都市下京区元日町17
構造
鉄骨造
契約期間
定期借家
引渡し時期
相談
出店可能業種
飲食全般(重飲食含む)、喫茶・カフェ(軽飲食)、バー・クラブ・スナック
取引態様
媒介(客付)
物件No.
TO2507-806 小笠原
費用詳細
賃料
43万円
敷金
234万5,455円
礼金
39万910円
仲介手数料
43万円