貸店舗(区分) 居抜き

相原ビル

506,000

無料
92
138
03-3525-4070

お電話の際は「ホームページを見て」とお伝えください

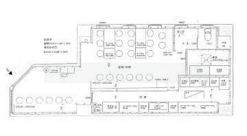
京浜急行電鉄日ノ出町駅徒歩2分、JR根岸線桜木町駅からも徒歩圏内。平戸桜木道路沿いの好立地で、飲食可能物件が出ました。人気店が多数出店している飲食街エリアで、終日人通りが多い立地になります。また前業態のラーメン店の造作やインフラがほぼ残置となっており、出店費用を抑えることが可能です。人気エリアの好立地物件になりますので、お早めにお問い合わせください。
京浜急行電鉄日ノ出町駅徒歩2分、JR根岸線桜木町駅からも徒歩圏内。平戸桜木道路沿いの好立地で、飲食可能物件が出ました。人気店が多数出店している飲食街エリアで、終日人通りが多い立地になります。また前業態のラーメン店の造作やインフラがほぼ残置となっており、出店費用を抑えることが可能です。人気エリアの好立地物件になりますので、お早めにお問い合わせください。

基本情報

賃料・費用

506,000

無料
92万円
138万円
間取り・専有
その他 62.19㎡
住所
交通
桜木町駅(徒歩7分)
日ノ出町駅(徒歩3分)
駐車場
無し

出店おすすめ業種

居抜き情報

ラーメン屋
造作譲渡料 200万円

設備・特徴

立地
駅前立地
室内設備・特徴
給排水設備 ガス設備 照明器具付

物件概要

階数
地下1階
専有面積
18.81坪 (62.19㎡)
所在地
神奈川県横浜市中区宮川町2-61
構造
鉄筋コンクリート(RC)造
契約期間
普通借家
引渡し時期
即時
出店可能業種
飲食全般(重飲食含む)、喫茶・カフェ(軽飲食)、バー・クラブ・スナック
居抜き情報
ラーメン屋の居抜き

造作譲渡料: 200万円

取引態様
媒介(客付)

費用詳細

賃料
50万6,000円
敷金
無料
保証金
138万円 (償却区分:解約)
礼金
92万円
仲介手数料
50万6,000円
更新料
69万円
更新手数料
2万円
償却金/敷引
138万円
駐車場
無し

周辺環境

飲食店 銀だこハイボール酒場野毛一号店

約212m 3分

ドラッグストア ツルハドラッグ横浜日ノ出町駅前店

約192m 3分

飲食店 中華食堂日高屋日ノ出町駅前店

約190m 3分

コンビニ セブンイレブン横浜日ノ出町駅前店

約188m 3分

幼稚園・保育園・こども園 クラウン保育園

約250m 4分

生活雑貨 Can★Do京急ストア日ノ出町店

約169m 3分

スーパー 京急ストア日ノ出町店

約164m 3分

飲食店 ケンタッキーフライドチキン日の出町店

約166m 3分

コンビニ セブンイレブン横浜宮川町3丁目店

約112m 2分

飲食店 やよい軒日の出町店

約145m 2分
電話でお問合せ