貸店舗(区分) 居抜き

香取テナント

18

54
36
-
03-3525-4070

お電話の際は「ホームページを見て」とお伝えください

町全体が重要文化財の滅多に出てこない物件です。/観光地:小江戸さわら舟めぐり、伊能忠敬記念館など/営業時間:相談可能/業種制限:お酒を出される業態NG/カギ交換費用別途必要/保証会社:連帯保証人がいれば不要/
町全体が重要文化財の滅多に出てこない物件です。/観光地:小江戸さわら舟めぐり、伊能忠敬記念館など/営業時間:相談可能/業種制限:お酒を出される業態NG/カギ交換費用別途必要/保証会社:連帯保証人がいれば不要/

基本情報

賃料・費用

18

54万円
36万円
-
間取り・専有
87.02㎡
住所
交通
佐原駅(徒歩12分)
駐車場

出店おすすめ業種

居抜き情報

喫茶・カフェ

設備・特徴

立地
幹線道路沿い 商店街に面す
室内設備・特徴
給排水設備 ガス設備 照明器具付
特徴
路面店

物件概要

階数
1階/地上1階建
専有面積
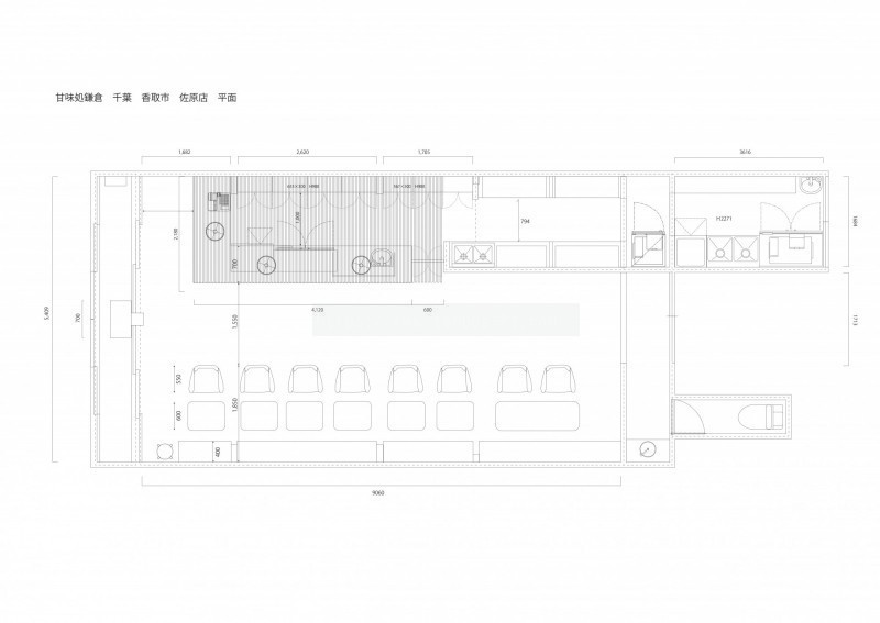
26.32坪 (87.02㎡)
所在地
千葉県香取市佐原イ1902-7
構造
木造
契約期間
普通借家
引渡し時期
相談
出店可能業種
喫茶・カフェ(軽飲食)
居抜き情報
喫茶・カフェの居抜き
取引態様
媒介(客付)

費用詳細

賃料
18万円
敷金
54万円
礼金
36万円
仲介手数料
19万8,000円
更新料
18万円
更新事務手数料
9万円

周辺環境

観光スポット 佐原の大祭夏祭り

約448m 6分

観光スポット 樋橋の落水

約270m 4分

郵便局 佐原上仲町郵便局

約130m 2分

観光スポット 佐原の大祭秋祭り

約68m 1分
電話でお問合せ