物件No.TO2502-3375河西 貸店舗(区分)
居抜き
ベルメゾン山下2号室B区画
賃
18万7,000円 (+管理費 5,500円)
敷
148万円
礼
34万円
保
100万円
03-3525-4070
お電話の際は「ホームページを見て」とお伝えください
鮫洲 徒歩2分 6.43坪 20.35万円 居酒屋居抜き/臭いや煙の強い業態・カラオケ・シーシャ不可/外国籍相談
出店可能な業態 軽飲食・重飲食・バー・クラブ
鮫洲 徒歩2分 6.43坪 20.35万円 居酒屋居抜き/臭いや煙の強い業態・カラオケ・シーシャ不可/外国籍相談
出店可能な業態 軽飲食・重飲食・バー・クラブ
出店可能な業態 軽飲食・重飲食・バー・クラブ
基本情報
賃料・費用
18万7,000円 (+管理費 5,500円)
敷
148万円
礼
34万円
保
100万円
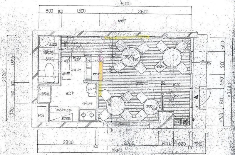
間取り・専有
21.24㎡
住所
交通
青物横丁駅(徒歩7分)
鮫洲駅(徒歩2分)
駐車場
出店おすすめ業種
飲食全般(重飲食含む)
喫茶・カフェ(軽飲食)
バー・クラブ・スナック
居抜き情報
居酒屋
造作譲渡料
550万円
設備・特徴
立地
複数路線利用可
物件概要
階数
1階/地上1階建
専有面積
6.43坪 (21.24㎡)
所在地
東京都品川区東大井1-2-12
構造
鉄筋コンクリート(RC)造
契約期間
普通借家
入居歴
あり
出店可能業種
飲食全般(重飲食含む)、喫茶・カフェ(軽飲食)、バー・クラブ・スナック
居抜き情報
居酒屋の居抜き
造作譲渡料: 550万円
取引態様
媒介(客付)
物件No.
TO2502-3375河西
更新料 新賃料の1.5ヶ月(税抜)
臭いや煙の強い業態・カラオケ・シーシャ不可/外国籍相談/営業時間制限:24時迄/指定火災保険加入必須※原則は当社指定の保証会社にご加入いただきます。(与信内容により免除の場合あり)/ダクト:直吹き/グリスト:無し
臭いや煙の強い業態・カラオケ・シーシャ不可/外国籍相談/営業時間制限:24時迄/指定火災保険加入必須※原則は当社指定の保証会社にご加入いただきます。(与信内容により免除の場合あり)/ダクト:直吹き/グリスト:無し
費用詳細
賃料
18万7,000円
敷金
148万円
保証金
100万円
礼金
34万円
仲介手数料
18万7,000円
管理費/共益費
5,500円
償却金/敷引
51万円
周辺環境
コンビニ ファミリーマート伊勢彦鮫洲旧東海道店
約96m
2分
飲食店 マクドナルド第一京浜鮫洲店
約242m
4分
飲食店 ジョナサン鮫洲店
約214m
3分
コンビニ ローソンストア100鮫洲店
約32m
1分