貸店舗(区分)
FOGLIA SHIBASAKI BLDG.(フォーリアシバサキビル)501
賃
39万9,300円
敷
108万9,000円
礼
無料
保
-
03-3525-4070
お電話の際は「ホームページを見て」とお伝えください
広瀬通沿い♪ 業種応相談!
広瀬通沿い♪ 業種応相談!
基本情報
賃料・費用
39万9,300円
敷
108万9,000円
礼
無料
保
-
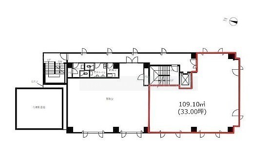
間取り・専有
109.1㎡
住所
交通
青葉通一番町駅(徒歩7分)
勾当台公園駅(徒歩9分)
広瀬通駅(徒歩8分)
大町西公園駅(徒歩10分)
国際センター駅(徒歩21分)
築年月
築41年(1984年11月)
駐車場
有り
2万5,300円/台
空き33台
出店おすすめ業種
喫茶・カフェ(軽飲食)
設備・特徴
立地
幹線道路沿い
建物設備・特徴
エレベーター
特徴
スケルトン
物件概要
階数
5階/地上8階建(地下1階)
専有面積
33.00坪 (109.10㎡)
所在地
宮城県仙台市青葉区国分町2丁目 2-5
構造
鉄骨鉄筋コンクリート(SRC)造
契約期間
普通借家
引渡し時期
即時
出店可能業種
喫茶・カフェ(軽飲食)
取引態様
媒介(客付)
賃貸保証・その他:鍵交換代:27,500円
費用詳細
賃料
39万9,300円
敷金
108万9,000円
礼金
無料
駐車場
有り
駐車可能台数: 33台
料金: 2万5,300円/台
交通
周辺環境
その他学校 仙台赤門医療専門学校国分町校舎
約221m
3分
病院 国家公務員共済組合連合会東北公済病院
約169m
3分
コンビニ ファミリーマート仙台国分町店
約50m
1分
飲食店 スターバックスコーヒーホテルグランテラス仙台国分町店
約46m
1分