物件No.渕上96  貸店舗(区分)

大禅ビル 部屋番号:301号室

302,500 (+管理費 41,723)

165
無料
無料
03-3525-4070

お電話の際は「ホームページを見て」とお伝えください

飲食店不可,土曜日利用可,共用部分に男女別トイレあり,エアコン,エレベーター
飲食店不可,土曜日利用可,共用部分に男女別トイレあり,エアコン,エレベーター

基本情報

賃料・費用

302,500 (+管理費 41,723)

165万円
無料
無料
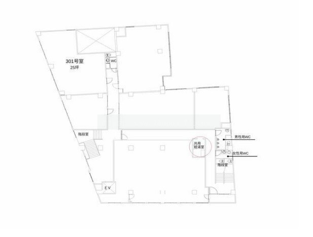
間取り・専有
80.99㎡
住所
交通
赤坂駅(徒歩7分)
「港一丁目」停 (徒歩3分)
築年月
築53年(1973年1月)
駐車場
有り 1万8,700円/台 空き3台

出店おすすめ業種

※出店不可業種:

飲食全般不可

設備・特徴

冷暖房
エアコン付
立地
複数路線利用可
建物設備・特徴
エレベーター
特徴
男女別トイレ(共用部) 男女別トイレ

物件概要

階数
3階/地上5階建(地下1階)
専有面積
24.50坪 (80.99㎡)
所在地
福岡県福岡市中央区舞鶴3-7-13
構造
鉄筋コンクリート(RC)造
契約期間
普通借家
引渡し時期
2025年02月初旬 (2025年02月01日 )
入居歴
あり
出店可能業種
事務所
出店不可業種
飲食全般不可
取引態様
媒介(客付)
物件No.
渕上96
原状回復工事が終わり次第の引き渡しになります。 保険等:要 更新料:なし 駐車場備考:屋上3台あります。 利用駅1:福岡市空港線 大濠公園 徒歩14分 利用駅2:福岡市空港線 天神 徒歩17分

費用詳細

賃料
30万2,500円
敷金
165万円
保証金
無料
礼金
無料
仲介手数料
30万2,500円
管理費/共益費
4万1,723円
駐車場
有り

駐車可能台数: 3台

料金: 1万8,700円/台

周辺環境

その他学校 ESPエンタテインメント福岡

約329m 5分

郵便局 福岡大手門郵便局

約298m 4分

銀行 西日本シティ銀行赤坂門支店

約310m 4分

コンビニ ローソン福岡舞鶴三丁目店

約263m 4分

飲食店 ウエスト舞鶴店

約192m 3分
電話でお問合せ